Plan 23-065
Copyright by Designer
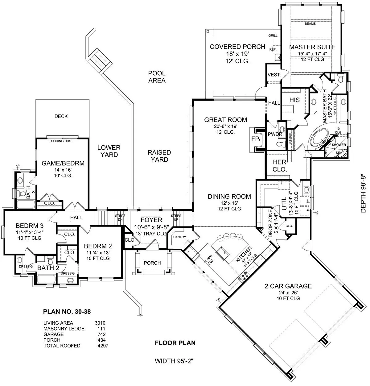
Bedrooms
3
Bathrooms
3
Half Baths
1
Square Feet
3010
Garage Stalls
2
Floors
1
Width
95' 2"
Depth
98' 8"
Height
1'
Bedrooms
3
Bathrooms
3
Half Baths
1
Square Feet
3010
Garage Stalls
2
Floors
1
Width
95' 2"
Depth
98' 8"
Height
1'
Expert Plan Review
Before you build, get clarity. Our seasoned design team is ready to provide authoritative answers on techinal specifications and custom modifications.
Design Your Home
Need changes to make this plan truly yours? Get a quick, free estimate and personalized advice – let’s personalize this design to fit your specific needs today.
Design Your Home
Need changes to make this plan truly yours? Get a quick, free estimate and personalized advice – let’s personalize this design to fit your specific needs today.
Expert Plan Review
Before you build, get clarity. Our seasoned design team is ready to provide authoritative answers on techinal specifications and custom modifications.
Plan 23-065
Starting at
$1,500.00
$1,500.00
Features
Square Footage
Dimensions
Details
Style
Modern Mountain
Outdoor Features
Front Porch, Rear Porch, Outdoor Kitchen
Bedroom and Bath Options
Bedrooms – Split, Master Bedroom at Rear, Jack and Jill Bathroom
Kitchen and Dining
Kitchen Island, Kitchen Window, Open Floor Plan, Walk-In Pantry
Laundry Location
Access From Master Suite, Laundry Near Mud Room, Laundry Near Kitchen
Additional Rooms
Mud Room
Garage Type
Angled Garage
Foundation Type
Slab, Crawl Space, Basement
Plan Description
Step into Plan 23-065, where modern mountain elegance embraces you from the moment you arrive. This isn't just a house; it's a sanctuary designed for both serene solitude and vibrant social connections.
As you approach, the bold, asymmetric volumes of the exterior, clad in smooth white stucco and accented with dark charcoal stacked stone, create a striking visual harmony. The varied rooflines, a series of mono-pitched shed roofs finished in dark charcoal metal, speak to a sleek, contemporary sensibility. Large, dark-framed windows punctuate the facade, promising interiors bathed in natural light.
Entering through the recessed doorway, you're greeted by a soaring 13-foot tray ceiling in the foyer. To the right, discover your private master wing—a retreat within a retreat. The master bedroom, with its timber-beamed 12-foot ceiling, exudes warmth and tranquility. The master bath is a spa-like experience, boasting dual vanities, a soaking tub, and a separate shower, all beneath a generous 12-foot ceiling. And with separate "His" and "Her" walk-in closets, including a built-in dresser in hers, organization meets luxury. The master suite is thoughtfully positioned at the back of the house.
The heart of the home lies in its expansive, open-concept living space. The dining room flows effortlessly into the great room, where a central fireplace beckons for cozy evenings. From here, step out onto the massive covered porch, complete with an outdoor kitchen, perfect for al fresco dining and entertaining. Adjacent to the dining area, the kitchen stands ready to inspire culinary adventures, featuring a large central island and a walk-in corner pantry.
On the opposite side of the home, discover a wing dedicated to comfort and entertainment. Bedrooms two and three share a Jack and Jill bathroom, providing privacy and convenience. Further down the hall, a game room, or optional fourth bedroom, offers space for recreation and relaxation, with its own private bathroom and access to an outdoor deck.
Practicality meets luxury in the details, from the angled two-car garage to the thoughtfully designed mud room and conveniently located laundry room. With 3010 square feet of heated living space, every corner of Plan 23-065 is designed to enhance your life.
What's Included
Floor Plan: Complete dimensions. Provides designation of all rooms, closets, cabinets, stairs, etc. Windows and doors clearly indicated with sizing and door swing direction. Permanently installed equipment indicated (cabinets, built-ins, plumbing fixtures, HVAC units).
Foundation Plan: Provides Complete dimensions. Slab layout and details where applicable. All concrete footings, pad, foundation wall and grade beams are shown.
Elevations: Front, Rear, Left and Right-side exterior elevations. Indicates all exterior finish materials. Finished floor lines with vertical dimensions. Shows all window and door openings.
Roof Plan: Perimeter rooflines, hip, valley, and ridge locations. All roof pitches, overhangs and necessary dimensions.
Wall Sections: Full wall section through house. Necessary Framing Details.
Schedules: Door and Window sizes, Room Finishes and information.
Cabinet Elevations: Elevations of all cabinetry.
Electrical: Indicates schematic layout of all outlets, switches and fixtures.
What's Not Included
Stamps: Depending on the city, county, and state building requirements, house plans may need to be reviewed by an architect or engineer for structural details and code standards. Contact a local architect or engineer to verify the requirements for your location.
Site Plan: A site plan shows how the house will fit on the lot between the property lines and the setbacks. It also shows the driveway and where parking, drainage easements, utility easements, and walkways should be constructed. Contact a civil engineer or surveyor to obtain the site plan.
Mechanical Drawings: These types of drawings show information about heating, ventilation, and air conditioning. Contact a local HVAC company to obtain mechanical drawings.
Plumbing Drawings: Plumbing drawings show the location of all plumbing materials throughout the house and outside. Contact a local plumbing contractor.
Energy Calculations: Energy calculations determine how energy efficient your new home will be. Contact a local engineer to dictate these calculations.
More Plans by This Designer
Returns Policy and Copyright Notice
Returns of Construction Drawings Sets are not allowed regardless if they are printed copies or PDFs. All sales are final and no credit or refund is available.
All house plans presented on this website are protected by copyright. Reproduction of these house plans, either in whole or in part, including any form of copying and/or preparation of derivative works thereof, for any reason without written permission from the Designer is strictly prohibited. The purchase of a set of house plans in no way transfers to the buyer any copyright or other ownership interest in the plan or the design of the dwelling unit. The purchase of a set of house plans provides the buyer a limited license to use that set of house plans for the construction of one, and only one, dwelling unit. The purchase of additional sets of house plans at a reduced price from the original set or as part of a multiple set package does not convey to the buyer a license to construct more than one dwelling unit.




