Plan 23-057
Copyright by Designer
Square Feet
2066
Bedrooms
3
Bathrooms
2
Garage Stalls
2
Floors
1
Half Baths
0
Width
70'
Depth
64'
Height
1'
Square Feet
2066
Bedrooms
3
Bathrooms
2
Garage Stalls
2
Floors
1
Half Baths
0
Width
70'
Depth
64'
Height
1'
Expert Plan Review
Before you build, get clarity. Our seasoned design team is ready to provide authoritative answers on techinal specifications and custom modifications.
Design Your Home
Need changes to make this plan truly yours? Get a quick, free estimate and personalized advice – let’s personalize this design to fit your specific needs today.
Design Your Home
Need changes to make this plan truly yours? Get a quick, free estimate and personalized advice – let’s personalize this design to fit your specific needs today.
Expert Plan Review
Before you build, get clarity. Our seasoned design team is ready to provide authoritative answers on techinal specifications and custom modifications.
Plan 23-057
Starting at
$1,260.00
$1,260.00
Features
Square Footage
Dimensions
Details
Style
Modern FarmhouseOutdoor Features
Front Porch, Rear Porch, Outdoor KitchenBedroom and Bath Options
Bedrooms – Split, Master Bedroom at Rear, Master Suite – Sitting AreaKitchen and Dining
Kitchen Island, Kitchen Window, Open Floor Plan, Walk-In PantryLaundry Location
Laundry Near Mud RoomAdditional Rooms
Mud RoomGarage Type
Side EntryFoundation Type
Slab, Crawl Space, BasementPlan Description
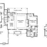
Imagine driving up to your new home, Plan 23-057, a modern farmhouse that exudes charm and simple elegance. The crisp white vertical board and batten siding creates a striking contrast with the dark charcoal window frames and shutters. The dynamic roofline, punctuated by multiple steep gables, gives the single-story layout a surprisingly grand presence.
As you step onto the wide front porch, sheltered by a sleek, dark metal roof and supported by clean, white square columns, you're drawn to the inviting set of dark-toned double doors with glass panes. This home is designed to make you feel welcome.
Inside, the floor plan unfolds into a thoughtfully organized single-story ranch with a split bedroom layout, offering exceptional privacy. The heart of the home is the massive open-concept great room, measuring 19 feet by 24 feet, crowned with an elegant 11-foot tray ceiling. This central hub flows effortlessly into the casual dining area and a chef's kitchen, complete with a large island, microwave drawer, sink, and a substantial walk-in pantry.
The right wing of the house is your private retreat, dedicated to the primary suite. The primary bedroom, measuring 13 feet 4 inches by 15 feet 6 inches, features an 11-foot tray ceiling and a dedicated sitting area. The ensuite primary bath is designed for relaxation, featuring dual vanities, a large shower with a built-in seat, and a separate tub. A voluminous walk-in closet with dedicated shoe storage is conveniently located nearby.
On the opposite side of the home, the left wing hosts the secondary bedrooms and utility areas. Two bedrooms, each with walk-in closets, share a centrally located full bathroom with dual sinks. The service entry from the two-car, side-entry garage leads through a drop zone with a bench and cubbies, adjacent to a large utility laundry room and the kitchen pantry, blending convenience with everyday living.
Step out from the great room onto the expansive covered porch through large windows and doors, perfect for outdoor living. With 2066 sq ft of heated living space, porches combining for 416 sq ft, and a total covered area of 3123 sq ft, this home is perfectly balanced.
What's Included
Floor Plan: Complete dimensions. Provides designation of all rooms, closets, cabinets, stairs, etc. Windows and doors clearly indicated with sizing and door swing direction. Permanently installed equipment indicated (cabinets, built-ins, plumbing fixtures, HVAC units).
Foundation Plan: Provides Complete dimensions. Slab layout and details where applicable. All concrete footings, pad, foundation wall and grade beams are shown.
Elevations: Front, Rear, Left and Right-side exterior elevations. Indicates all exterior finish materials. Finished floor lines with vertical dimensions. Shows all window and door openings.
Roof Plan: Perimeter rooflines, hip, valley, and ridge locations. All roof pitches, overhangs and necessary dimensions.
Wall Sections: Full wall section through house. Necessary Framing Details.
Schedules: Door and Window sizes, Room Finishes and information.
Cabinet Elevations: Elevations of all cabinetry.
Electrical: Indicates schematic layout of all outlets, switches and fixtures.
What's Not Included
Stamps: Depending on the city, county, and state building requirements, house plans may need to be reviewed by an architect or engineer for structural details and code standards. Contact a local architect or engineer to verify the requirements for your location.
Site Plan: A site plan shows how the house will fit on the lot between the property lines and the setbacks. It also shows the driveway and where parking, drainage easements, utility easements, and walkways should be constructed. Contact a civil engineer or surveyor to obtain the site plan.
Mechanical Drawings: These types of drawings show information about heating, ventilation, and air conditioning. Contact a local HVAC company to obtain mechanical drawings.
Plumbing Drawings: Plumbing drawings show the location of all plumbing materials throughout the house and outside. Contact a local plumbing contractor.
Energy Calculations: Energy calculations determine how energy efficient your new home will be. Contact a local engineer to dictate these calculations.
More Plans by This Designer
Returns Policy and Copyright Notice
Returns of Construction Drawings Sets are not allowed regardless if they are printed copies or PDFs. All sales are final and no credit or refund is available.
All house plans presented on this website are protected by copyright. Reproduction of these house plans, either in whole or in part, including any form of copying and/or preparation of derivative works thereof, for any reason without written permission from the Designer is strictly prohibited. The purchase of a set of house plans in no way transfers to the buyer any copyright or other ownership interest in the plan or the design of the dwelling unit. The purchase of a set of house plans provides the buyer a limited license to use that set of house plans for the construction of one, and only one, dwelling unit. The purchase of additional sets of house plans at a reduced price from the original set or as part of a multiple set package does not convey to the buyer a license to construct more than one dwelling unit.




