Plan 23-040
Copyright by Designer
Square Feet
3410
Bedrooms
4
Bathrooms
3
Garage Stalls
3
Floors
2
Half Baths
1
Width
81' 7"
Depth
86' 3"
Height
1'
Square Feet
3410
Bedrooms
4
Bathrooms
3
Garage Stalls
3
Floors
2
Half Baths
1
Width
81' 7"
Depth
86' 3"
Height
1'
Expert Plan Review
Before you build, get clarity. Our seasoned design team is ready to provide authoritative answers on techinal specifications and custom modifications.
Design Your Home
Need changes to make this plan truly yours? Get a quick, free estimate and personalized advice – let’s personalize this design to fit your specific needs today.
Design Your Home
Need changes to make this plan truly yours? Get a quick, free estimate and personalized advice – let’s personalize this design to fit your specific needs today.
Expert Plan Review
Before you build, get clarity. Our seasoned design team is ready to provide authoritative answers on techinal specifications and custom modifications.
Plan 23-040
Starting at
$1,500.00
$1,500.00
Features
Square Footage
Dimensions
Details
Style
Texas Hill Country, Rustic CraftsmanOutdoor Features
Front Porch, Rear PorchBedroom and Bath Options
Bedrooms – Split, Master Bedroom at Rear, Master Suite – 1st FloorKitchen and Dining
Kitchen Island, Kitchen Window, Open Floor Plan, Walk-In PantryLaundry Location
Laundry Near Mud RoomAdditional Rooms
Flex Room, BarGarage Type
Side EntryFoundation Type
Slab, Crawl Space, BasementPlan Description
Stepping into Plan 23-040, you're greeted by a sense of openness and warmth. The foyer, with its soaring 13-foot tray ceiling, immediately makes you feel welcome. Your eyes are drawn forward into the heart of the home – a vast, interconnected living space where the casual dining area and great room blend seamlessly. Sun pours in through large sliding doors, beckoning you to the outdoor living space.
Imagine preparing meals in the kitchen, the heart of this home. It's not just a kitchen; it's a culinary haven with a large island, a farmhouse sink, and a walk-in pantry, all designed to make cooking a joy.
To the left, a private vestibule leads you to the primary suite – a true retreat. The primary bedroom, with its decorative beams is a sanctuary of calm. The ensuite primary bath is a spa-like experience, featuring a large shower, a soaking tub, and separate vanities. And with two walk-in closets, you'll have all the space you need. The Master Bedroom, Master Bathroom, and Master Closet are seamlessly connected to create a private retreat within the home. The bathroom is directly connected to the bedroom through an opening, and the closets are accessed through the bathroom, creating a smooth and luxurious flow.
On the other side of the home, a long hall connects a wet bar to a game room – perfect for entertaining. Nearby, you'll find a powder room and a cozy bedroom with its own full bathroom. The large laundry room and drop zone offer practical convenience, making everyday chores a little easier.
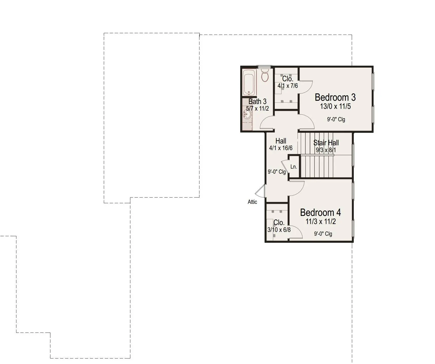
Upstairs, the second floor offers a quiet, private space for family or guests. Two additional bedrooms share a bathroom, and a large unfinished attic space provides plenty of storage.
The exterior of the home exudes modern elegance. The Modern Hill Country style, with its clean lines and mix of natural materials, creates a striking first impression. The facade features grey-toned stone masonry and smooth stucco, while the dark charcoal-colored metal roof adds a touch of sophistication. The stone-clad gabled porch welcomes you home, and the dark-framed windows add a touch of modern flair.
What's Included
Floor Plan: Complete dimensions. Provides designation of all rooms, closets, cabinets, stairs, etc. Windows and doors clearly indicated with sizing and door swing direction. Permanently installed equipment indicated (cabinets, built-ins, plumbing fixtures, HVAC units).
Foundation Plan: Provides Complete dimensions. Slab layout and details where applicable. All concrete footings, pad, foundation wall and grade beams are shown.
Elevations: Front, Rear, Left and Right-side exterior elevations. Indicates all exterior finish materials. Finished floor lines with vertical dimensions. Shows all window and door openings.
Roof Plan: Perimeter rooflines, hip, valley, and ridge locations. All roof pitches, overhangs and necessary dimensions.
Wall Sections: Full wall section through house. Necessary Framing Details.
Schedules: Door and Window sizes, Room Finishes and information.
Cabinet Elevations: Elevations of all cabinetry.
Electrical: Indicates schematic layout of all outlets, switches and fixtures.
What's Not Included
Stamps: Depending on the city, county, and state building requirements, house plans may need to be reviewed by an architect or engineer for structural details and code standards. Contact a local architect or engineer to verify the requirements for your location.
Site Plan: A site plan shows how the house will fit on the lot between the property lines and the setbacks. It also shows the driveway and where parking, drainage easements, utility easements, and walkways should be constructed. Contact a civil engineer or surveyor to obtain the site plan.
Mechanical Drawings: These types of drawings show information about heating, ventilation, and air conditioning. Contact a local HVAC company to obtain mechanical drawings.
Plumbing Drawings: Plumbing drawings show the location of all plumbing materials throughout the house and outside. Contact a local plumbing contractor.
Energy Calculations: Energy calculations determine how energy efficient your new home will be. Contact a local engineer to dictate these calculations.
More Plans by This Designer
Returns Policy and Copyright Notice
Returns of Construction Drawings Sets are not allowed regardless if they are printed copies or PDFs. All sales are final and no credit or refund is available.
All house plans presented on this website are protected by copyright. Reproduction of these house plans, either in whole or in part, including any form of copying and/or preparation of derivative works thereof, for any reason without written permission from the Designer is strictly prohibited. The purchase of a set of house plans in no way transfers to the buyer any copyright or other ownership interest in the plan or the design of the dwelling unit. The purchase of a set of house plans provides the buyer a limited license to use that set of house plans for the construction of one, and only one, dwelling unit. The purchase of additional sets of house plans at a reduced price from the original set or as part of a multiple set package does not convey to the buyer a license to construct more than one dwelling unit.




