Plan 23-028
Copyright by Designer
Square Feet
4203
Bedrooms
4
Bathrooms
5
Garage Stalls
3
Floors
2
Half Baths
1
Width
118' 1"
Depth
52' 2"
Height
Height not available
Square Feet
4203
Bedrooms
4
Bathrooms
5
Garage Stalls
3
Floors
2
Half Baths
1
Width
118' 1"
Depth
52' 2"
Height
Height not available
Expert Plan Review
Before you build, get clarity. Our seasoned design team is ready to provide authoritative answers on techinal specifications and custom modifications.
Design Your Home
Need changes to make this plan truly yours? Get a quick, free estimate and personalized advice – let’s personalize this design to fit your specific needs today.
Design Your Home
Need changes to make this plan truly yours? Get a quick, free estimate and personalized advice – let’s personalize this design to fit your specific needs today.
Expert Plan Review
Before you build, get clarity. Our seasoned design team is ready to provide authoritative answers on techinal specifications and custom modifications.
Plan 23-028
Starting at
$1,740.00
$1,740.00
Features
Square Footage
Dimensions
Details
Style
Transitional, New Traditional, Rustic CraftsmanOutdoor Features
Front Porch, Rear Porch, Wrap Around PorchBedroom and Bath Options
Master Suite – 1st Floor, Master Suite – Sitting AreaKitchen and Dining
Breakfast Nook, Keeping Room, Kitchen Island, Open Floor Plan, Walk-In Pantry, Formal DiningLaundry Location
Additional Rooms
Den, Flex RoomGarage Type
Foundation Type
Slab, Crawl Space, BasementPlan Description
The Plan 23-028 house plan offers a blend of Southern charm and traditional elegance, designed for comfortable living and memorable gatherings. With 4,203 square feet of heated living space spread over two stories, this home provides ample room for family and guests. The exterior boasts a welcoming front porch and a wrap-around porch, perfect for enjoying the outdoors.
As you step inside, you're greeted by a 2 story ceiling that enhances the sense of spaciousness. The open floor plan seamlessly connects the kitchen, keeping room, and breakfast nook, creating a central hub for daily life. The kitchen features an island and a walk-in pantry, catering to both everyday meals and elaborate feasts. A formal dining room is also included for more formal occasions.
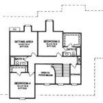
The first floor, spanning 3,120 square feet, also includes a den and a flex room, providing options for a home office, library, or playroom. Upstairs, the 1,083-square-foot second floor houses additional bedrooms, ensuring everyone has their own space.
The master suite is a private retreat, thoughtfully designed for relaxation and convenience. The master bedroom flows effortlessly into the master bathroom, creating a spa-like experience with luxurious fixtures and finishes. The master closet is easily accessible from the bathroom, streamlining your daily routine.
What's Included
Floor Plan: Complete dimensions. Provides designation of all rooms, closets, cabinets, stairs, etc. Windows and doors clearly indicated with sizing and door swing direction. Permanently installed equipment indicated (cabinets, built-ins, plumbing fixtures, HVAC units).
Foundation Plan: Provides Complete dimensions. Slab layout and details where applicable. All concrete footings, pad, foundation wall and grade beams are shown.
Elevations: Front, Rear, Left and Right-side exterior elevations. Indicates all exterior finish materials. Finished floor lines with vertical dimensions. Shows all window and door openings.
Roof Plan: Perimeter rooflines, hip, valley, and ridge locations. All roof pitches, overhangs and necessary dimensions.
Wall Sections: Full wall section through house. Necessary Framing Details.
Schedules: Door and Window sizes, Room Finishes and information.
Cabinet Elevations: Elevations of all cabinetry.
Electrical: Indicates schematic layout of all outlets, switches and fixtures.
What's Not Included
Stamps: Depending on the city, county, and state building requirements, house plans may need to be reviewed by an architect or engineer for structural details and code standards. Contact a local architect or engineer to verify the requirements for your location.
Site Plan: A site plan shows how the house will fit on the lot between the property lines and the setbacks. It also shows the driveway and where parking, drainage easements, utility easements, and walkways should be constructed. Contact a civil engineer or surveyor to obtain the site plan.
Mechanical Drawings: These types of drawings show information about heating, ventilation, and air conditioning. Contact a local HVAC company to obtain mechanical drawings.
Plumbing Drawings: Plumbing drawings show the location of all plumbing materials throughout the house and outside. Contact a local plumbing contractor.
Energy Calculations: Energy calculations determine how energy efficient your new home will be. Contact a local engineer to dictate these calculations.
More Plans by This Designer
Returns Policy and Copyright Notice
Returns of Construction Drawings Sets are not allowed regardless if they are printed copies or PDFs. All sales are final and no credit or refund is available.
All house plans presented on this website are protected by copyright. Reproduction of these house plans, either in whole or in part, including any form of copying and/or preparation of derivative works thereof, for any reason without written permission from the Designer is strictly prohibited. The purchase of a set of house plans in no way transfers to the buyer any copyright or other ownership interest in the plan or the design of the dwelling unit. The purchase of a set of house plans provides the buyer a limited license to use that set of house plans for the construction of one, and only one, dwelling unit. The purchase of additional sets of house plans at a reduced price from the original set or as part of a multiple set package does not convey to the buyer a license to construct more than one dwelling unit.




