Plan 22-009
Copyright by Designer
Square Feet
1716
Bedrooms
3
Bathrooms
2
Garage Stalls
2
Floors
1
Half Baths
0
Width
79' 10"
Depth
63' 6"
Height
24' 6"
Square Feet
1716
Bedrooms
3
Bathrooms
2
Garage Stalls
2
Floors
1
Half Baths
0
Width
79' 10"
Depth
63' 6"
Height
24' 6"
Expert Plan Review
Before you build, get clarity. Our seasoned design team is ready to provide authoritative answers on techinal specifications and custom modifications.
Design Your Home
Need changes to make this plan truly yours? Get a quick, free estimate and personalized advice – let’s personalize this design to fit your specific needs today.
Design Your Home
Need changes to make this plan truly yours? Get a quick, free estimate and personalized advice – let’s personalize this design to fit your specific needs today.
Expert Plan Review
Before you build, get clarity. Our seasoned design team is ready to provide authoritative answers on techinal specifications and custom modifications.
Plan 22-009
Starting at
$1,300.00
$1,300.00
Features
Square Footage
Dimensions
Details
Style
Coastal Cottage, Modern FarmhouseOutdoor Features
Front Porch, Rear Porch, Screened Porch, Outdoor Fireplace, Outdoor KitchenBedroom and Bath Options
Bedrooms – Split, Master Bedroom at Rear, Master Suite – 1st FloorKitchen and Dining
Kitchen Island, Kitchen Window, Open Floor PlanLaundry Location
Access From Master Suite, Laundry Near Mud RoomAdditional Rooms
Garage Type
Front EntryFoundation Type
SlabPlan Description
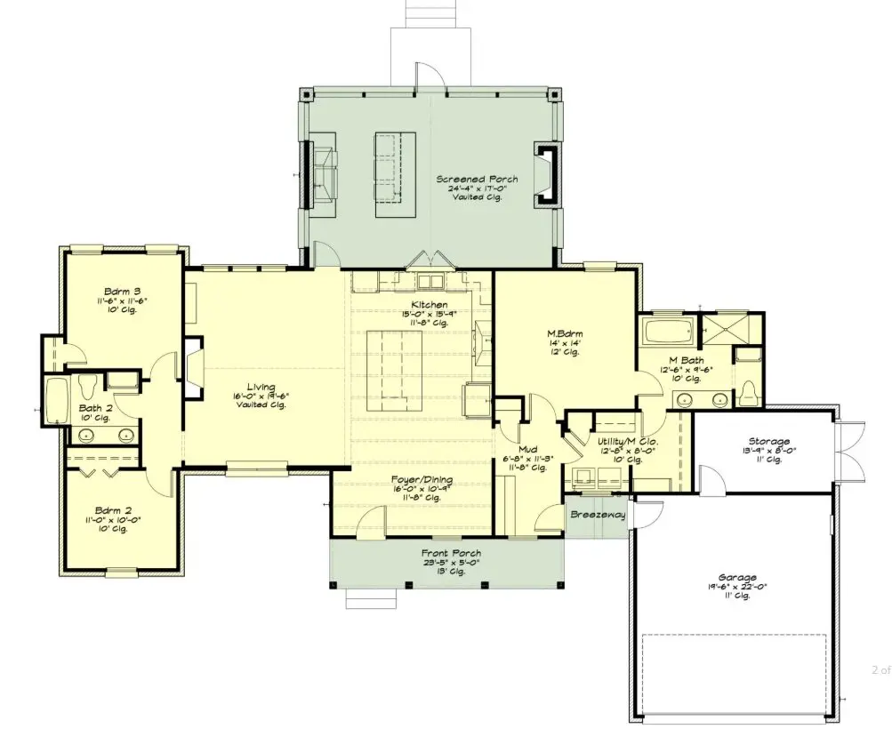
Imagine stepping onto the inviting front porch of your dream home, Plan 22-009. This stunning 1-story farmhouse boasts 1716 square feet of heated living space, plus an expansive 632 sq ft two-car garage and a generous 588 sq ft of combined porches—a total of 2936 sq ft! Picture yourself relaxing on the large rear porch, complete with an outdoor kitchen and fireplace, creating unforgettable memories with family and friends.
This beautiful Coastal/Lake home offers 3 bedrooms and 2 bathrooms, perfectly designed for comfortable living. The master suite, located at the rear of the house, features a vaulted ceiling adding to the spacious feel. The split vanities in the master bathroom provide a touch of luxury.
The open floor plan seamlessly connects the kitchen, dining, and living areas, creating a warm and inviting atmosphere. The kitchen island is perfect for meal preparation and casual dining, while the large kitchen window lets in plenty of natural light. The screened porch adds a unique element of entertainment for you and your guests, overlooking a lake or just a beautiful backyard.
The home features 10', 11', and 12' ceilings, adding to the sense of grandeur.
What's Included
Floor Plan: Complete dimensions. Provides designation of all rooms, closets, cabinets, stairs, etc. Windows and doors clearly indicated with sizing and door swing direction. Permanently installed equipment indicated (cabinets, built-ins, plumbing fixtures, HVAC units).
Foundation Plan: Provides Complete dimensions. Slab layout and details where applicable. All concrete footings, pad, foundation wall and grade beams are shown.
Elevations: Front, Rear, Left and Right-side exterior elevations. Indicates all exterior finish materials. Finished floor lines with vertical dimensions. Shows all window and door openings.
Roof Plan: Perimeter rooflines, hip, valley, and ridge locations. All roof pitches, overhangs and necessary dimensions.
Wall Sections: Full wall section through house. Necessary Framing Details.
Schedules: Door and Window sizes, Room Finishes and information.
Cabinet Elevations: Elevations of all cabinetry.
Electrical: Indicates schematic layout of all outlets, switches and fixtures.
What's Not Included
Stamps: Depending on the city, county, and state building requirements, house plans may need to be reviewed by an architect or engineer for structural details and code standards. Contact a local architect or engineer to verify the requirements for your location.
Site Plan: A site plan shows how the house will fit on the lot between the property lines and the setbacks. It also shows the driveway and where parking, drainage easements, utility easements, and walkways should be constructed. Contact a civil engineer or surveyor to obtain the site plan.
Mechanical Drawings: These types of drawings show information about heating, ventilation, and air conditioning. Contact a local HVAC company to obtain mechanical drawings.
Plumbing Drawings: Plumbing drawings show the location of all plumbing materials throughout the house and outside. Contact a local plumbing contractor.
Energy Calculations: Energy calculations determine how energy efficient your new home will be. Contact a local engineer to dictate these calculations.
More Plans by This Designer
Returns Policy and Copyright Notice
Returns of Construction Drawings Sets are not allowed regardless if they are printed copies or PDFs. All sales are final and no credit or refund is available.
All house plans presented on this website are protected by copyright. Reproduction of these house plans, either in whole or in part, including any form of copying and/or preparation of derivative works thereof, for any reason without written permission from the Designer is strictly prohibited. The purchase of a set of house plans in no way transfers to the buyer any copyright or other ownership interest in the plan or the design of the dwelling unit. The purchase of a set of house plans provides the buyer a limited license to use that set of house plans for the construction of one, and only one, dwelling unit. The purchase of additional sets of house plans at a reduced price from the original set or as part of a multiple set package does not convey to the buyer a license to construct more than one dwelling unit.




