Plan 20-034
Copyright by Designer
Bedrooms
4
Bathrooms
3
Half Baths
Square Feet
2334
Garage Stalls
2
Floors
2
Width
50'
Depth
67' 8"
Height
29' 6"
Bedrooms
4
Bathrooms
3
Half Baths
Square Feet
2334
Garage Stalls
2
Floors
2
Width
50'
Depth
67' 8"
Height
29' 6"
Expert Plan Review
Before you build, get clarity. Our seasoned design team is ready to provide authoritative answers on techinal specifications and custom modifications.
Design Your Home
Need changes to make this plan truly yours? Get a quick, free estimate and personalized advice – let’s personalize this design to fit your specific needs today.
Design Your Home
Need changes to make this plan truly yours? Get a quick, free estimate and personalized advice – let’s personalize this design to fit your specific needs today.
Expert Plan Review
Before you build, get clarity. Our seasoned design team is ready to provide authoritative answers on techinal specifications and custom modifications.
Plan 20-034
Starting at
$1,540.00
$1,540.00
Features
Square Footage
Dimensions
Details
Style
Modern Acadian Farmhouse, Modern Farmhouse, New Traditional
Outdoor Features
Front Porch, Rear Porch
Bedroom and Bath Options
Bedrooms – Split, Master Bedroom at Rear, Master Suite – 1st Floor
Kitchen and Dining
Kitchen Island, Open Floor Plan, Walk-In Pantry
Laundry Location
Access From Master Suite, Laundry Near Kitchen
Additional Rooms
Bonus Room
Garage Type
Front Entry
Foundation Type
Slab
Plan Description
Imagine yourself stepping onto the inviting front porch of Plan 20-034, a stunning farmhouse design blending Southern charm with traditional elegance. This isn't just a house; it's a home waiting to embrace your family's laughter and create cherished memories.
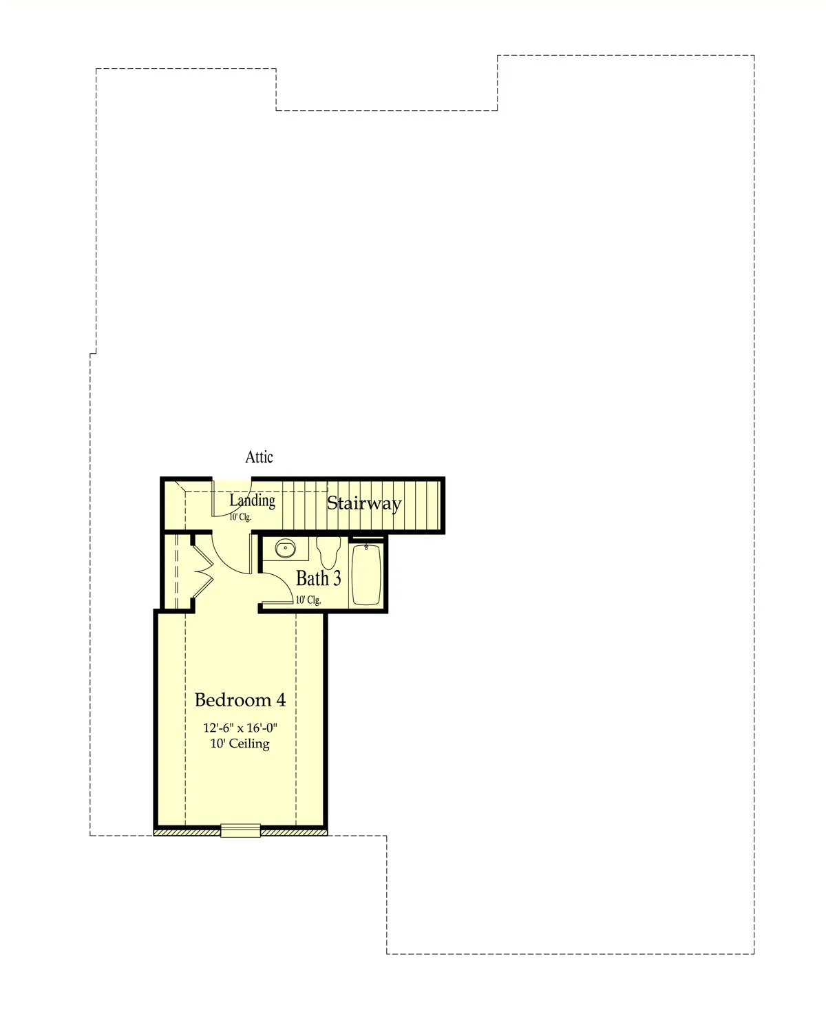
This two-story masterpiece boasts 2334 square feet of heated living space, plus an expansive 612 square foot garage and a delightful 544 square feet of porch space – perfect for sipping sweet tea on warm evenings. Picture this: four bedrooms and three bathrooms offer ample space for everyone, with the master suite conveniently located on the first floor for ultimate privacy and ease of access. The split bedroom design ensures peaceful nights for all.
The heart of the home is an open floor plan, seamlessly connecting the kitchen, dining, and living areas. A large kitchen island becomes the central hub for family gatherings, while the walk-in pantry provides ample storage space for your culinary creations. Upstairs, a bonus room waits – transform it into a playroom, home office, or cozy guest suite – the possibilities are endless.
The 2-car front entry garage provides convenient access.
Plan 20-034 offers more than just square footage; it offers a lifestyle. It's a place where memories are made, where family thrives, and where comfort meets style. Don't just build a house; build your dream. Choose Plan 20-034.
What's Included
Floor Plan: Complete dimensions. Provides designation of all rooms, closets, cabinets, stairs, etc. Windows and doors clearly indicated with sizing and door swing direction. Permanently installed equipment indicated (cabinets, built-ins, plumbing fixtures, HVAC units).
Foundation Plan: Provides Complete dimensions. Slab layout and details where applicable. All concrete footings, pad, foundation wall and grade beams are shown.
Elevations: Front, Rear, Left and Right-side exterior elevations. Indicates all exterior finish materials. Finished floor lines with vertical dimensions. Shows all window and door openings.
Roof Plan: Perimeter rooflines, hip, valley, and ridge locations. All roof pitches, overhangs and necessary dimensions.
Wall Sections: Full wall section through house. Necessary Framing Details.
Schedules: Door and Window sizes, Room Finishes and information.
Cabinet Elevations: Elevations of all cabinetry.
Electrical: Indicates schematic layout of all outlets, switches and fixtures.
What's Not Included
Stamps: Depending on the city, county, and state building requirements, house plans may need to be reviewed by an architect or engineer for structural details and code standards. Contact a local architect or engineer to verify the requirements for your location.
Site Plan: A site plan shows how the house will fit on the lot between the property lines and the setbacks. It also shows the driveway and where parking, drainage easements, utility easements, and walkways should be constructed. Contact a civil engineer or surveyor to obtain the site plan.
Mechanical Drawings: These types of drawings show information about heating, ventilation, and air conditioning. Contact a local HVAC company to obtain mechanical drawings.
Plumbing Drawings: Plumbing drawings show the location of all plumbing materials throughout the house and outside. Contact a local plumbing contractor.
Energy Calculations: Energy calculations determine how energy efficient your new home will be. Contact a local engineer to dictate these calculations.
More Plans by This Designer
Returns Policy and Copyright Notice
Returns of Construction Drawings Sets are not allowed regardless if they are printed copies or PDFs. All sales are final and no credit or refund is available.
All house plans presented on this website are protected by copyright. Reproduction of these house plans, either in whole or in part, including any form of copying and/or preparation of derivative works thereof, for any reason without written permission from the Designer is strictly prohibited. The purchase of a set of house plans in no way transfers to the buyer any copyright or other ownership interest in the plan or the design of the dwelling unit. The purchase of a set of house plans provides the buyer a limited license to use that set of house plans for the construction of one, and only one, dwelling unit. The purchase of additional sets of house plans at a reduced price from the original set or as part of a multiple set package does not convey to the buyer a license to construct more than one dwelling unit.
Imagine yourself stepping onto the inviting front porch of Plan 20-034, a stunning farmhouse design blending Southern charm with traditional elegance. This isn’t just a house; it’s a home waiting to embrace your family’s laughter and create cherished memories.
This two-story masterpiece boasts 2334 square feet of heated living space, plus an expansive 612 square foot garage and a delightful 544 square feet of porch space – perfect for sipping sweet tea on warm evenings. Picture this: four bedrooms and three bathrooms offer ample space for everyone, with the master suite conveniently located on the first floor for ultimate privacy and ease of access. The split bedroom design ensures peaceful nights for all.
The heart of the home is an open floor plan, seamlessly connecting the kitchen, dining, and living areas. A large kitchen island becomes the central hub for family gatherings, while the walk-in pantry provides ample storage space for your culinary creations. Upstairs, a bonus room waits – transform it into a playroom, home office, or cozy guest suite – the possibilities are endless.
The 2-car front entry garage provides convenient access.
Plan 20-034 offers more than just square footage; it offers a lifestyle. It’s a place where memories are made, where family thrives, and where comfort meets style. Don’t just build a house; build your dream. Choose Plan 20-034.




